beat·365(亚洲)体育-官方网站
网站首页
关于我们
beat365亚洲体育官方网站简介
现任领导
机构设置
专业设置
团队队伍
全部教师
绘画类教师
设计类教师
理论书法类教师
特聘教师
教辅人员
教学科研
工作动态
科学研究
专业认证
党群工作
主题教育
党务工作
党员教育
工会之窗
员工工作
团学工作
专业竞赛
自助奖贷
心理健康
优秀员工
规章制度
艺术申硕
招生简章
培养流程
院校介绍
新闻动态
美术馆
美术馆概况
展览资讯
实践实训
校地合作
合作概况
合作企业
合作动态
实践基地
实训中心
中心简介
实训动态
规则制度
人才招聘
招生计划
就业创业
就业信息
教学科研
Teaching Research
工作动态
科学研究
专业认证
网站首页
教学科研
工作动态
正文
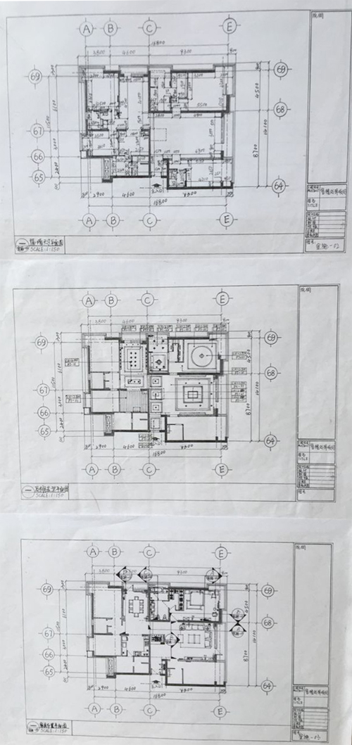
杨梦宇老师2015级3班《建筑工程制图》教学成果汇报展
新闻发布者:发布管理员
新闻来源:beat365亚洲体育官方网站
发布时间:2017-07-06 19:10:36
浏览量:
环境设计教研室
下一篇:
黄学敏老师2015级3班«环艺表现技法»教学成果回报展
上一篇:
廖仁荣老师2016级1班《素描人物头像、半身》教学成果汇报展
经理信箱
书记信箱
下载文件
友情链接
校内链接
集团微信
公司微信
美术馆
中央beat365亚洲体育官方网站
中国beat365亚洲体育官方网站
天津beat365亚洲体育官方网站
广州beat365亚洲体育官方网站
西安beat365亚洲体育官方网站
鲁迅beat365亚洲体育官方网站
四川beat365亚洲体育官方网站
湖北beat365亚洲体育官方网站